ルルーディア南今津町(売買 新築一戸建て) | 福山市南今津町 |

ルルーディア南今津町 | 福山市南今津町の不動産物件

*お値段下がりました
*ヤマダポイントプレゼント
*即日ご案内も可能です
*ローンや資金面に不安の方もお気軽にご相談ください
*玄関にはシューズクローク
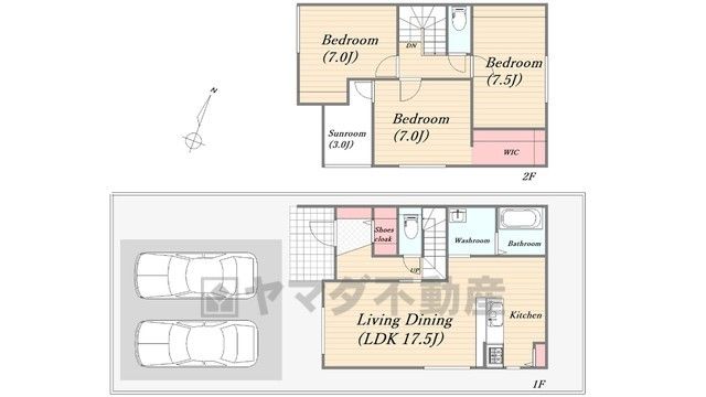
*17.5帖の広々リビング
*サンルームのある間取り
【新築一戸建て】 新築 駐車場あり オール電化
価格 2,698万円 (税込)
山陽本線 東尾道駅 徒歩31分
スマホ表示
物件コード:117452
所在地 建物面積
土地面積
間取り 築年月
広島県福山市南今津町170番 98.94m2
133.96m2
3LDK 2025/06

物件基本情報

▲1号棟現地外観写真
▲間取り図
物件種目 新築一戸建て
物件名称 ルルーディア南今津町
所在地 広島県福山市南今津町170番
交通
山陽本線 東尾道駅 徒歩31分
山陽本線 松永駅 徒歩26分
階数 2階建
建物構造 木造
建ぺい率/容積率 60% / 200%
駐車場
学校 遺芳丘小学校 / 松永中学校
設備・条件
  • Wクローゼット
  • 追い焚き
  • オール電化
  • 洗浄便座
  • シャンプードレッサー
  • 浴室1坪以上
  • 浴室乾燥機
  • オートバス
  • IHクッキングヒーター
  • システムキッチン
ヤマダ不動産 福山店
Tel084-973-5775
お気軽にお問い合わせください。

画像・写真

  • 前面道路含む現地写真
    前面道路含む現地写真
  • 前面道路含む現地写真
    前面道路含む現地写真
  • 駐車2台可能
    駐車2台可能
  • 広々玄関ポーチ
    広々玄関ポーチ
  • シューズクロークとシューズクロークのある玄関
    シューズクロークとシューズクロークのある玄関
  • 17.5帖のリビング
    17.5帖のリビング
  • キッチンからご家族との会話ができますね。
    キッチンからご家族との会話ができますね。
  • 浴槽にはベンチスペースがあるので半身浴やお子様も座ることができ安心快適です
    浴槽にはベンチスペースがあるので半身浴やお子様も座ることができ安心快適です
  • 三面鏡タイプの洗面台
    三面鏡タイプの洗面台
  • 2階洋室のお部屋です。
    2階洋室のお部屋です。
  • 2階洋室のお部屋です
    2階洋室のお部屋です
  • 2階洋室のお部屋です
    2階洋室のお部屋です
  • サンルーム
    サンルーム

周辺地図

地図を表示中...
ストリートビュー未対応エリアです。

物件詳細情報

物件用途 居住用 地目 その他
間取り詳細 LDK17.5畳、洋7畳、洋7畳、その他3畳、洋7.5畳 都市計画 -
建物向き - 用途地域 工業地域
土地面積基準 実測 接道 -
土地権利 所有権 私道面積 -
借地条件 - 道路位置指定 -
地代 - 不適合接道 -
建築確認番号 - セットバック -
現況 空家 国土法届出 不要
引渡時期 相談 取引態様 一般
設備その他 -
特記事項 -
備考 -
情報更新日 2025/11/17 広告有効期限 2025/12/18
電話でお問い合わせ
ヤマダ不動産 福山店 店舗情報
[所在地] 広島県福山市明神町2丁目15-30 ヤマダデンキ Tecc LIFE SELECT 福山店 1F
[営業時間] 10:00~18:00
Tel084-973-5775
お気軽にお問い合わせください。