尾道市山波町第5 2期(売買 新築一戸建て) | 尾道市山波町 |

尾道市山波町第5 2期 | 尾道市山波町の不動産物件

*お値段下がりました
*ヤマダポイントプレゼント
*即日ご案内も可能です
*ローンや資金面に不安の方もお気軽にご相談ください
*閑静な住宅街
【新築一戸建て】 新築 駐車場あり
価格 2,090万円 (税込)
山陽本線 尾道駅 徒歩39分
スマホ表示
物件コード:109569
所在地 建物面積
土地面積
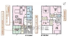
間取り 築年月
広島県尾道市山波町2330番10号 108.54m2
170.66m2
4LDK 2025/04

物件基本情報

▲7号棟ケイミュー外壁は汚れが付きにくい効果を併せ持つ特徴があります。
▲間取り図
物件種目 新築一戸建て
物件名称 尾道市山波町第5 2期
所在地 広島県尾道市山波町2330番10号
交通
山陽本線 尾道駅 徒歩39分
階数 2階建
建物構造 木造
建ぺい率/容積率 60% / 184%
駐車場
学校 山波小学校 / 久保中学校
設備・条件
  • TVドアホン
  • 追い焚き
  • 洗浄便座
  • シャンプードレッサー
  • 床下収納
  • 浴室乾燥機
  • バルコニー
  • オートバス
  • カウンターキッチン
  • システムキッチン
ヤマダ不動産 福山店
Tel084-973-5775
お気軽にお問い合わせください。

画像・写真

  • 前面道路含む現地写真
    前面道路含む現地写真
  • 前面道路含む現地写真
    前面道路含む現地写真
  • 前面道路含む現地写真
    前面道路含む現地写真
  • 前面道路含む現地写真
    前面道路含む現地写真
  • 並列2台可能
    並列2台可能
  • 玄関横にはポストが設置されています
    玄関横にはポストが設置されています
  • 大容量のシューズボックス
    大容量のシューズボックス
  • 16帖のリビングには便利な収納スペースがあります。
    16帖のリビングには便利な収納スペースがあります。
  • キッチンからご家族との会話ができますね。
    キッチンからご家族との会話ができますね。
  • お掃除ラクラク節水トイレ
    お掃除ラクラク節水トイレ
  • 浴槽にはベンチスペースがあるので半身浴やお子様も座ることができ安心快適です
    浴槽にはベンチスペースがあるので半身浴やお子様も座ることができ安心快適です
  • 三面鏡タイプの洗面台
    三面鏡タイプの洗面台
  • 洋室6.5帖のお部屋です。
    洋室6.5帖のお部屋です。
  • サンルーム
    サンルーム
  • 2階洋室7帖のお部屋です
    2階洋室7帖のお部屋です
  • 2階洋室6帖のお部屋です。
    2階洋室6帖のお部屋です。
  • 屋根があるので急な雨でも安心です
    屋根があるので急な雨でも安心です
  • 区画図
    区画図
  • 現地案内図
    現地案内図
  • 地震に強い家づくり・制震装置(SAFE365)の優れた特長 地震の揺れを抑え、耐震性能を維持。
    地震に強い家づくり・制震装置(SAFE365)の優れた特長 地震の揺れを抑え、耐震性能を維持。
  • マイスター認定・断熱材自体の貼りやすさの研究も行い、 キレイに貼りやすい断熱材の開発と貼り方の 施工技術を構築し、実践しています。
    マイスター認定・断熱材自体の貼りやすさの研究も行い、 キレイに貼りやすい断熱材の開発と貼り方の 施工技術を構築し、実践しています。
  • 土台作り・地盤調査を外部機関に委託して実施。 その調査データに基づいて地盤改良(補強)工事を行います。
    土台作り・地盤調査を外部機関に委託して実施。 その調査データに基づいて地盤改良(補強)工事を行います。
  • 構造を傷めにくい工法・施工の安全性と構造体の強度に配慮し 「通し柱を」見直し。 木を痛めにくい、耐震性を高める金物を開発。
    構造を傷めにくい工法・施工の安全性と構造体の強度に配慮し 「通し柱を」見直し。 木を痛めにくい、耐震性を高める金物を開発。
  • プレカット材・加工ミス防止・省力化の面で優れている プレカット材を構造材(柱、梁など)だけでなく 羽柄材(筋かい、間柱など)にも採用しています。
    プレカット材・加工ミス防止・省力化の面で優れている プレカット材を構造材(柱、梁など)だけでなく 羽柄材(筋かい、間柱など)にも採用しています。
  • エネルギー消費性能(削減率20%達成)、断熱性能5段階/7段階中、本現場に関して全ての棟の「エネルギー消費性能」と「断熱性能」は代表棟ラベルと同一です。
    エネルギー消費性能(削減率20%達成)、断熱性能5段階/7段階中、本現場に関して全ての棟の「エネルギー消費性能」と「断熱性能」は代表棟ラベルと同一です。
  • EV充電用コンセント
    EV充電用コンセント

コメント

■建売住宅日本1の飯田グループ

・お客様とご家族が安心して、末永く住み続けることができる「すまい」を提供する為、住宅性能評価を取得

・シェアNo.1(国内約30%)だからできる「高品質」な家を「好価格」で。

・ご購入後もずっとサポート「すまいーだPLUS」

(2024年分譲戸建て販売棟数約40.000棟)

■ヤマダの新築購入安心サポート

・気になる近隣、周辺の洪水状況などの聞き込み調査♪

・住宅ローンは10数社の中からお客様にあったローン会社をご提案いたします♪

・住宅ローン事務代行手数料など不要♪

・購入後の給付金,助成金の無料サポート♪

周辺地図

地図を表示中...
ストリートビュー未対応エリアです。

物件詳細情報

物件用途 居住用 地目 宅地
間取り詳細 LDK16畳、和4.5畳、洋7畳、洋6畳、洋6.5畳、その他3畳 都市計画 市街化区域
建物向き - 用途地域 第一種中高層住居専用地域
土地面積基準 公簿 接道 -
土地権利 所有権 私道面積 -
借地条件 - 道路位置指定 -
地代 - 不適合接道 -
建築確認番号 - セットバック -
現況 空家 国土法届出 不要
引渡時期 相談 取引態様 一般
設備その他 -
特記事項 -
備考 -
情報更新日 2025/12/01 広告有効期限 2026/01/01
電話でお問い合わせ
ヤマダ不動産 福山店 店舗情報
[所在地] 広島県福山市明神町2丁目15-30 ヤマダデンキ Tecc LIFE SELECT 福山店 1F
[営業時間] 10:00~18:00
Tel084-973-5775
お気軽にお問い合わせください。