◆ヤマダ不動産 福山店◆

>>PC&スマホサイトへ
下へ
物件詳細(売買)

2号棟外観パーツ
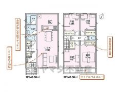
間取り図 前面道路含む現地写真 前面道路含む現地写真 前面道路含む現地写真 前面道路含む現地写真 区画図 現地案内図 画像9 画像10 地震に強い家づくり・制震装置(SAFE365)の優れた特長 地震の揺れを抑え、耐震性能を維持。 マイスター認定・断熱材自体の貼りやすさの研究も行い、 キレイに貼りやすい断熱材の開発と貼り方の 施工技術を構築し、実践しています。 土台作り・地盤調査を外部機関に委託して実施。 その調査データに基づいて地盤改良(補強)工事を行います。 構造を傷めにくい工法・施工の安全性と構造体の強度に配慮し 「通し柱を」見直し。 木を痛めにくい、耐震性を高める金物を開発。 プレカット材・加工ミス防止・省力化の面で優れている プレカット材を構造材(柱、梁など)だけでなく 羽柄材(筋かい、間柱など)にも採用しています。 エネルギー消費性能(削減率20%達成)、断熱性能5段階/7段階中、本現場に関して全ての棟の「エネルギー消費性能」と「断熱性能」は代表棟ラベルと同一です。
【新築一戸建て】竹原市竹原町第2
呉線 竹原 13分
広島県竹原市竹原町3585番1号(地図)

*残り1棟となりました
*お値段下がりました
*ヤマダポイントプレゼント
*即日ご案内も可能です
*ローンや資金面に不安の方もお気軽にご相談ください
*玄関廊下にクローゼット完備

価格:2,080万円(税込)

建物面積:97.20m2
土地面積:135.70m2
間取り:4LDK
階数:2階建
建物構造:木造
築年月:2025/05

現況:
建ぺい率:60%
容積率:200%
土地権利:所有権
建築確認番号:第RO7SHC100536号
駐車場:
学校:竹原小学校/竹原中学校

物件コード:111295
取引態様:一般
公開日:2025/12/01
広告有効期限:2026/01/01

084-973-5775
物件のお問合せ
お問合せにあたってのご注意

上へ

トップページ

(c)株式会社フラワーサウンド